Toronto Broadview + Danforth | 139.4m | 43s | Choice Properties | Superkül

Though the link hasn't changed, it would seem sensible to repost so people can easily look at the docs.


Then, from the above..........:

View attachment 692377
View attachment 692378

View attachment 692382
View attachment 692383
View attachment 692384
View attachment 692385
View attachment 692386
View attachment 692387

View attachment 692388

View attachment 692389
View attachment 692391

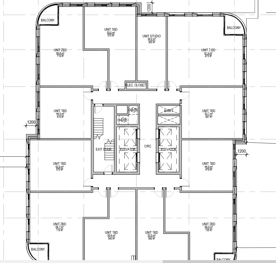
Unit layout building B:

View attachment 692393

Elevator ratios:

857 units overall

Building A: 385 - 4 elevators - 96 units per elevator

Building B: 472 - 4 elevators - 118 units per elevator

*****

Comments:

Architecturally acceptable (style) with some warmth/colour , though a downgrade from the original vision here.

Rental Tenure good; grocery store retention continues, good.

Unit layouts are a bit small.

Elevator ratio is good in Building A, and ok'ish in B

Challenges/Problems - Wind, Wind and more Wind. With full exposure to prevailing western winds, at these heights, the proponents own studies show not merely uncomfortable but unsafe wind conditions.

There are potential strategies to mitigate these, but I'm not sold. I'm not convinced the buildings are massed in such a way as to deliver a reasonable outcome, and I think a height reduction may be preferred here. I will look at the Wind Study for more details later.

There continues to be a proposed encroachment into the buffer for the slope, though its less consequential to be sure than the previous iteration.

The 155 St. Dennis decision at the OLT may serve to justify accepting that here. TBD.

The shadowing impacts are inconsistent w/the most recent Secondary Plan for the area, but said plan is not yet in legal force.

Good analysis, all of which I agree with. Although don't ask me about wind and shadow studies!

I'm very familiar with the neighbourhood.

Curious to see how the locals react. I was surprised by the relatively muted opposition to the original, albeit smaller, proposal.
 
I live just around the corner from this site, and I spent a fair bit of time defending the original proposal to my neighbours. But all my talking points other than "more rental housing at a transit node is a moral good" are gone with this iteration. The massing is far more imposing and inelegant, the architectural expression is far less interesting, all of the public space is gone, the connection to the ravine is gone, and the likelihood of traffic density being felt by everyone who already parks on the streets around here is way higher. That latter one is not a primary priority for me, but it absolutely will be a sticking point with many. As someone here said earlier, it is not necessary to own a car here, but I guarantee that a couple of hundred people in these buildings will.

People were muted about the last iteration because it was a good proposal - I'd expect more pushback this time around.
 
720broadview-001.jpg


It's worse than The Cheapening, it's The Worsening.
 
The other side of the valley has densified a lot. See the pictures below, taken from the Broadview hill. Does anybody really think that density isn't coming to the east side of the valley? Especially with the Ontario Line and East Harbour Station on the way? And several big apartment buildings already in existence around Broadview & Danforth?

2010 picture - source

1762096524847.png


2024 picture - source

Riverdale_Park_and_Toronto_Skyline%2C_July_2024.jpeg
 
Come on ?!?!?

3B squeezed into 875 sqft !?!?
2B squeezed into 716 sqft!?!?


4 elevators in each tower is not enough to service ~40 storeys/~400 units.
Inevitably, 1 elevator is always out of service, 1 is booked out for move-ins/-outs leaving only 2 in service.


This proposal almost doubles the density on a smaller site.
 

Back
Top