Toronto Alta | 149m | 45s | Oxford Properties | BDP Quadrangle

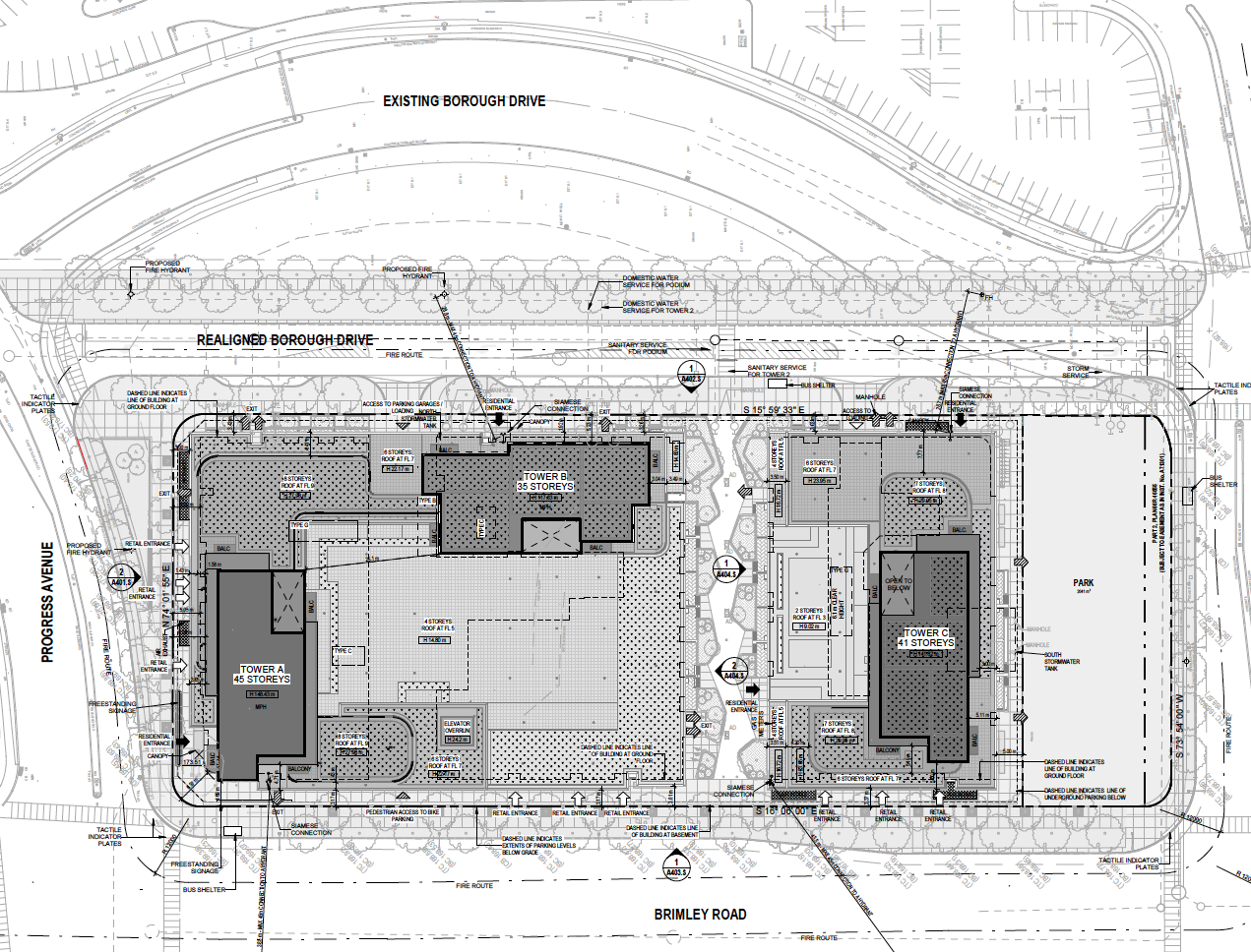
New docs posted November 28. Heights are now 35, 41 and 45 storeys:


View attachment 375108

View attachment 375109
View attachment 375110
View attachment 375111
View attachment 375112

View attachment 375115

Some details on the changes, from the Cover Letter:

1642371613801.png

1642371675379.png

1642371652328.png

1642371743028.png
 
  • Like
Reactions: PMT
I don't really like the inclusion of parking space above-grade on floors 2 through 4. Ideally they can be retrofitted to commercial uses in the long-run once we evolve past out automobile-centric regime.
I might be inclined to agree if this were in Yorkville or St Lawrence market area.
Many people who will be buying condos in the inner suburbs, need a car for their work whether they are delivering packages , prescriptions full time or as extra income.. Plumbers, contractors, elevator technicians, cleaning services need a car or truck. Not everyone can work and make six figures on a laptop from the comfort of their home or society wouldnt function.
 
I might be inclined to agree if this were in Yorkville or St Lawrence neighbourhood.
But a lot of people who would buy here need a car for their work whether they are delivering packages, prescriptions, plumbers, elevator technicians etc. Not everyone works on a laptop from the comfort of their home.

As much as many of us would like to see less parking in many proposals, his comment was specifically targeting the above-grade parking.

People are perfectly capable of fetching a car/their car from underground parking.

It should be noted that even if all the above-grade parking were removed and not otherwise replaced that there would be 2 levels of underground parking remaining.
 
As much as many of us would like to see less parking in many proposals, his comment was specifically targeting the above-grade parking.

People are perfectly capable of fetching a car/their car from underground parking.

It should be noted that even if all the above-grade parking were removed and not otherwise replaced that there would be 2 levels of underground parking remaining.

Looks like I mis-read what he was saying.

I think most of us, regardless of our careers , prefer parking being out of sight and underground. The fact basement levels are usually more efficient to heat dosent hurt either.
 
Many people who will be buying condos in the inner suburbs, need a car for their work whether they are delivering packages , prescriptions full time or as extra income.. Plumbers, contractors, elevator technicians, cleaning services need a car or truck. Not everyone can work and make six figures on a laptop from the comfort of their home or society wouldnt function.
In addition to what Northern Lights said, it should be noted that these are rental units, not condos.

Also there is still 2 levels of underground parking planned here.
 
Looks like I mis-read what he was saying.

I think most of us, regardless of our careers , prefer parking being out of sight and underground. The fact basement levels are usually more efficient to heat dosent hurt either.
I feel it's preferable to have above ground parking where retail and building amenities are on the ground floor and the parking provides a break between the extra noise and where people live. If you have a gym with free weights, no one is bothered when the weights hit the floor. No one is bothered by excessive noise from a party room. The theatre room can be loud without being a nuisance. All amenities don't need to close at night due to noise.
 
New renderings are updated in the database! The original storey count went from 50, 41, 32 storeys now to 45, 41, 35 storeys. The overall building's heights dropped from 163.49m, 135.18m, 107.98m to 141.82m, 117.63m, 148.43m. The total unit count decreased from 1342 units to 1282 units. Finally, the overall parking spaces decreased from 748 parking spaces to 558 parking spaces.
 
Does anyone have a document or Link that details the TOTAL number of units proposed for ALL the Scarborough Town Centre development blocks in 2018 Master Plan..? I can't seem to find it anywhere. Thx!

36257-122114.png
 
Oxford's Block Context plan suggests 15,000 units on their lands and 9,000 from developments in the immediate vicinity.

@HousingNowTO

For specific reference, from the Planning Rationale Report, p.2:

1644120033166.png


p. 16 of the Planning Rationale:

1644120165333.png


The same report also discusses IZ, beginning on p.94 and suggests Oxford will be cooperative/supportive w/that.
 
No new renderings are updated in the database! The project information has some minor changes. The total unit count increased a bit from 1282 units to 1285 units. The total parking space count decreased slightly from 558 parking spaces to 550 parking spaces. The overall building heights changed from 148.43m, 141. 82m, 117.63m to 149.00 m, 142.10 m, 118.90 m. Finally, the overall building storey count remains the same at 45, 41 and 35 storeys.
 
Site was selected as a successful applicant for the 2021 submissions for the OPEN DOOR program... via OMERS Realty Holdings (ie CadFairview) & Alberta Retirement fund.

64 affordable units x 40 years of affordability, out of total 1,282 purpose-built rental units in this block of the STC rebuild.

Therefore, approx. "~5% of units as Affordable-Rental for 40-years" deal via OPEN DOOR... and the first deal City has done with one of the big PENSION FUNDS for OPEN DOOR that we can recall.

LINK - http://app.toronto.ca/tmmis/viewAgendaItemHistory.do?item=2022.PH34.8


1654022102601.png
 

Back
Top