Northern Light
Superstar
This one was before Council in July with a Settlement Offer, which was adopted and is now public:
@Paclo
No change to storey count.
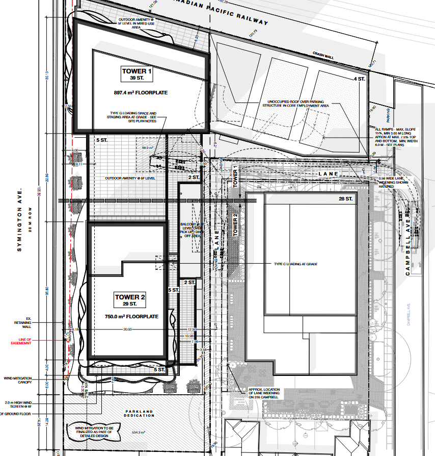
Revised Stats:
Revised Site Plan:
No New Renders
Elevation:
@Paclo
No change to storey count.
Revised Stats:
Revised Site Plan:
No New Renders
Elevation: