kotsy
Senior Member
What I mean is: they are close in height as they riseOne is 218m (715ft), the other is 300m (984ft). Quite a difference in height.
What I mean is: they are close in height as they riseOne is 218m (715ft), the other is 300m (984ft). Quite a difference in height.
Sorry my bad!What I mean is: they are close in height as they rise
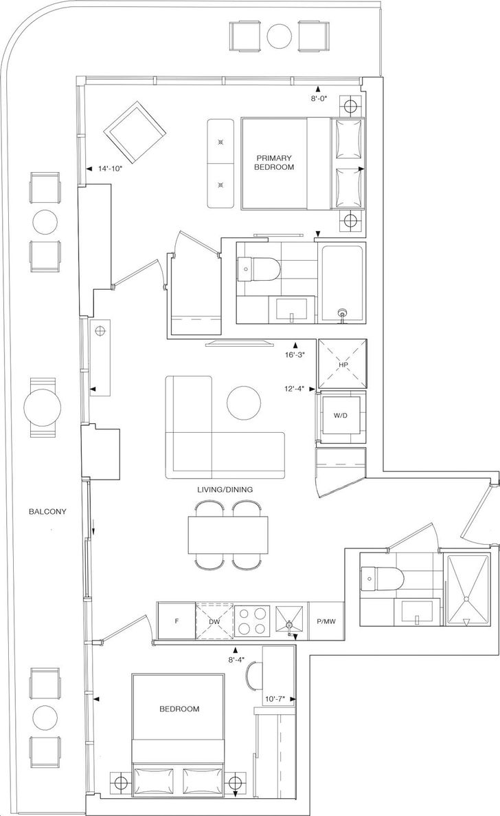
I'm looking at this floor plan of a "two-bedroom" in this building, and the lack of storage space (or of actual space) has me wondering if this is supposed to be some kind of innovative vertical naturist colony.
View attachment 672524
The living/dining area is a feng shui nightmare.Washer/dryer two feet from the sofa. What!??
Decent layout but every space is absurdly small to the point of being unusable. The dining room (only big enough to seat 4) is basically in the kitchen and the kitchen has no counter space to speak of. They're going to have to use the dining room table as a kitchen counter. The sofa being barely longer than the washer/dryer is a big red flag. Shows how puny that 'living' room is.
This is yet another condo building where you need to buy 2 condos next to each other, knock down the shared wall, and make a proper sized unit.
Would be seen as a plus for some people - just stretch out to take out the washing without leaving the comfort of your sofaWasher/dryer two feet from the sofa. What!??
That'd be great, especially after ordering in food on their proto dining table (their laps).Would be seen as a plus for some people - just stretch out to take out the washing without leaving the comfort of your sofa
Even better if you can just use your feet to do it.Would be seen as a plus for some people - just stretch out to take out the washing without leaving the comfort of your sofa